3103 N Oakland Avenue, Decatur, IL
$159,900
Pending
3 Beds
2½ Baths
1,861 SqFt
0.46 Acres
2 Car Garage
About 3103 N Oakland Avenue
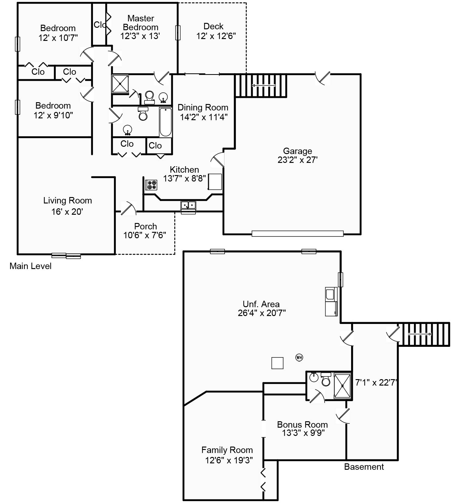
Great north location close to shopping, churches, schools and interstate 72. This brick and vinyl sided ranch has a full basement and a 2 car attached garage. The main floor offers a large eat-in kitchen, private living room and 3 bedrooms. Entering the basement from the garage offers a private setting for guests if needed. The basement has a family room, bathroom and a laundry area. Detached garage is perfect for a workshop. Plus, there is a large shed for storing lawn mowers and garden equipment. Nice garden area next to the shed. Minor cosmetic updating needed. Sellng home in an As Is condition due to being in an Estate. Great neighborhood with 1/2 acre lots.
Facts & Features
| MLS® # | 6251928 |
|---|---|
| Price | $159,900 |
| Cost Per Square Foot | $86 |
| Bedrooms | 3 |
| Bathrooms | 3.00 |
| Full Baths | 2 |
| Half Baths | 1 |
| Total Finished Square Feet | 1,861 |
| Total Finished Above Grade | 1,368 |
| Main | 1,368 |
| Basement Total | 1,396 |
| Basement Finished | 493 |
| Basement Unfinished | 903 |
| Acres | 0.46 |
| Year Built | 1976 |
| Type | Single Family |
| Sub-Type | Single Family Residence |
| Style | Ranch |
| Status | Pending |
| Taxes | $3,284 |
| Tax Year | 2024 |
Community Information
| Address | 3103 N Oakland Avenue |
|---|---|
| Subdivision | Greendell Add |
| City | Decatur |
| County | Macon |
| State | IL |
| Zip Code | 62526 |
Amenities
| Parking | Detached, Garage, Attached |
|---|---|
| # of Garage Spaces | 2 |
| Is Waterfront | No |
| Has Pool | No |
Interior
| Appliances | Gas Water Heater, Cooktop, Dishwasher, Range, Refrigerator |
|---|---|
| Heating | Forced Air, Gas |
| Cooling | Central Air |
| Has Basement | Yes |
| Basement | Finished, Full, Unfinished |
| Fireplace | Yes |
| # of Fireplaces | 1 |
| # of Stories | 1 |
| Stories | One |
Exterior
| Lot Dimensions | 103 x 196 |
|---|---|
| Roof | Asphalt |
| Construction | Brick, Vinyl Siding |
| Foundation | Basement |
School Information
| District | Decatur Dist 61 |
|---|---|
| Elementary | Parsons |
| Middle | Stephen Decatur |
| High | Macarthur |
Additional Information
| Date Listed | May 13th, 2025 |
|---|---|
| Days on Market | 149 |
| Zoning | RES |
Listing Details
| Agent | Joseph Doolin |
|---|---|
| Office | Brinkoetter REALTORS® |