2262 Yorkshire Drive, Decatur, IL
$90,000
Pending
3 Beds
1½ Baths
1,836 SqFt
0.19 Acres
2 Car Garage
About 2262 Yorkshire Drive
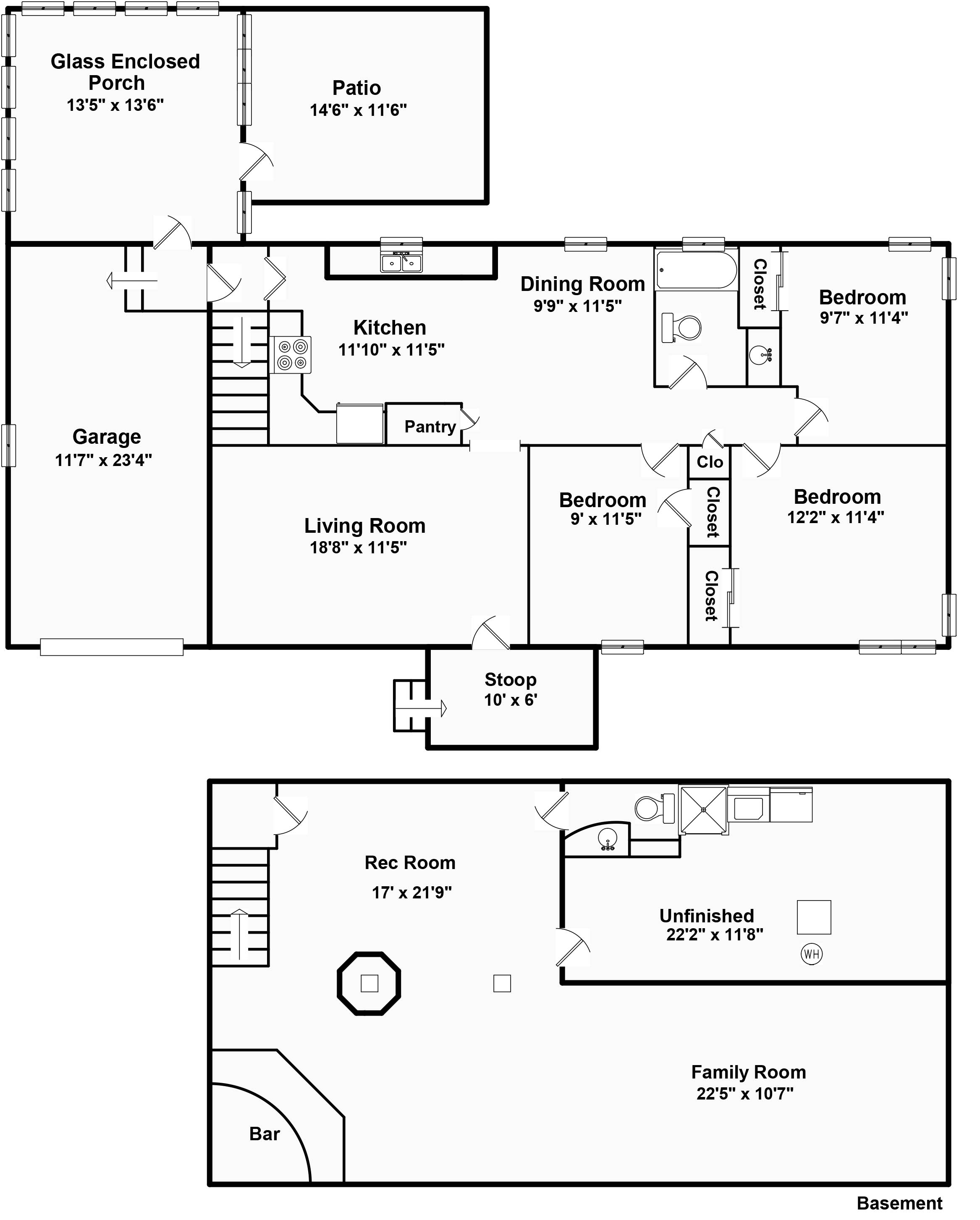
Charming 3 bedroom, 1.5 bath ranch in Decatur’s popular Home Park neighborhood—perfect as a starter home, downsizing option, or investment property. Recently rented for $1,000/month, this home offers solid value and versatility. The main level features a comfortable layout with updated finishes, while the finished basement includes a wet bar and convenient half bath—ideal for entertaining or extra living space. Step outside to enjoy the fenced backyard, a sunroom off the garage overlooking it, and a storage shed for added convenience. Major updates since 2014 include: roof, flooring, air conditioner, stainless steel appliances, interior paint, toilets, ceiling fans, and blown-in insulation—making this home move-in ready and worry-free. Don’t miss this great opportunity in Home Park! No homestead exemption currently on file—next bill will reflect approximately $580 reduction in taxes.
Facts & Features
| MLS® # | 6254594 |
|---|---|
| Price | $90,000 |
| Cost Per Square Foot | $49 |
| Bedrooms | 3 |
| Bathrooms | 2.00 |
| Full Baths | 1 |
| Half Baths | 1 |
| Total Finished Square Feet | 1,836 |
| Total Finished Above Grade | 1,056 |
| Main | 1,056 |
| Basement Total | 1,056 |
| Basement Finished | 780 |
| Basement Unfinished | 276 |
| Acres | 0.19 |
| Year Built | 1956 |
| Type | Single Family |
| Sub-Type | Single Family Residence |
| Style | Ranch |
| Status | Pending |
| Taxes | $2,773 |
| Tax Year | 2024 |
Community Information
| Address | 2262 Yorkshire Drive |
|---|---|
| Subdivision | Home Park 1st Add |
| City | Decatur |
| County | Macon |
| State | IL |
| Zip Code | 62526 |
Amenities
| Parking | Attached, Garage |
|---|---|
| # of Garage Spaces | 2 |
| Is Waterfront | No |
| Has Pool | No |
Interior
| Appliances | Dishwasher, Disposal, Gas Water Heater, Microwave, Oven, Range, Refrigerator |
|---|---|
| Heating | Hot Water |
| Cooling | Central Air, Whole House Fan |
| Has Basement | Yes |
| Basement | Finished, Full, Unfinished |
| Fireplace | No |
| # of Stories | 1 |
| Stories | One |
Exterior
| Exterior Features | Fence, Shed |
|---|---|
| Lot Dimensions | irregular |
| Roof | Asphalt, Shingle |
| Construction | Vinyl Siding |
| Foundation | Basement |
School Information
| District | Decatur Dist 61 |
|---|
Additional Information
| Date Listed | August 20th, 2025 |
|---|---|
| Days on Market | 68 |
| Zoning | RES |
Listing Details
| Agent | Tony Piraino |
|---|---|
| Office | Brinkoetter REALTORS® |