Loading floorplan...
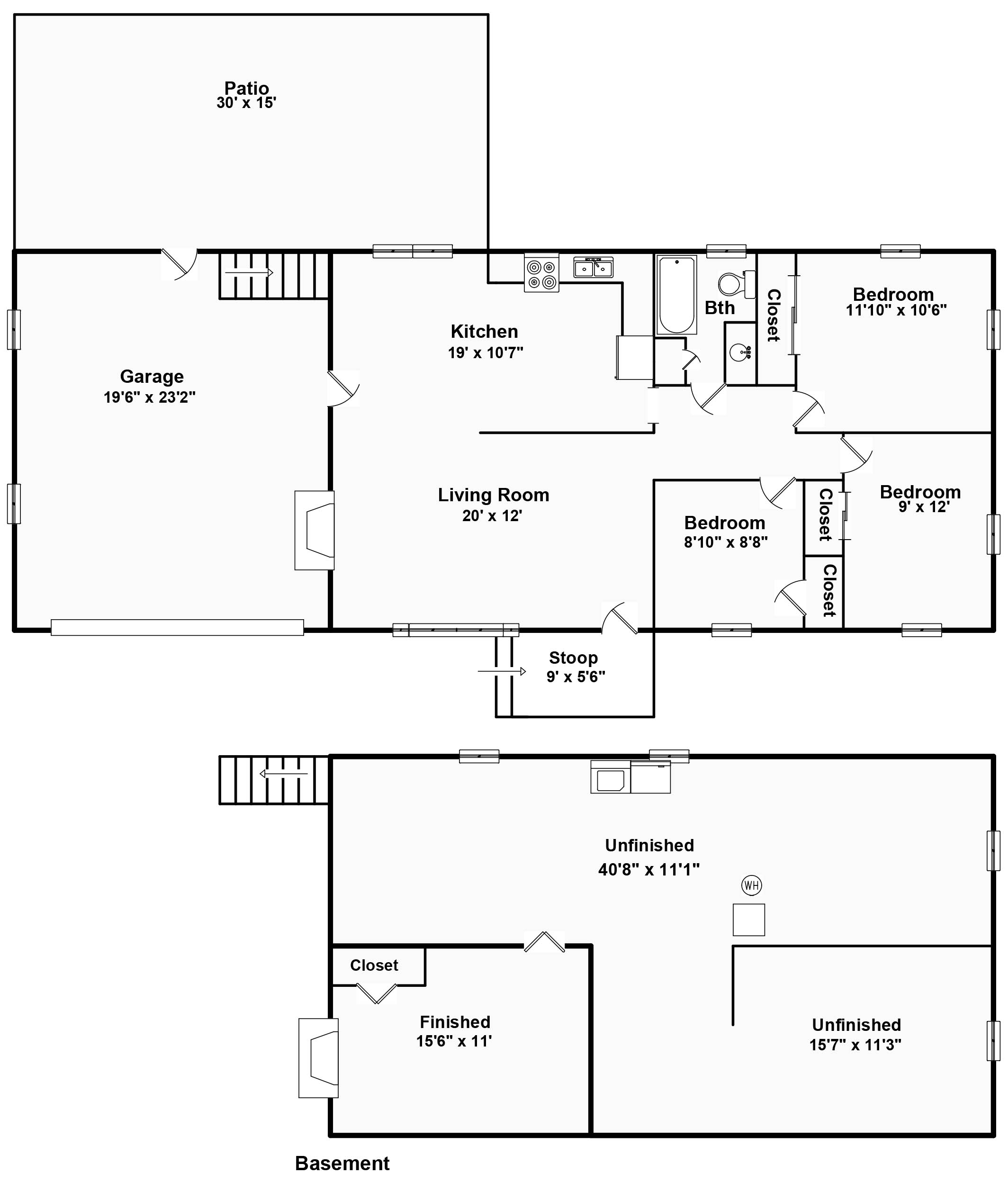
3454 N Christine Drive, Decatur, IL Floorplan
  • 1024w

3454 N Christine Drive, Decatur, IL

$115,000

Active - Under Contract

3 Beds

1 Bath

1,206 SqFt

0.45 Acres

2 Car Garage

About 3454 N Christine Drive

Move-in ready ranch with basement and attached 2-car garage on the north side of town, near shopping and Hwy 72. Recent updates include a brand new roof in 2024, new windows including a large bay window in living room, and new flooring throughout. The spacious back yard is mostly fenced, and has a patio for relaxing, as well as a shed for outdoor storage. Basement is unfinished, but has a cute partially finished area with a fireplace. All kitchen appliances and washer/dryer included. Schedule your showing today!

Facts & Features

MLS® # 6254687
Price $115,000
Cost Per Square Foot $95
Bedrooms 3
Bathrooms 1.00
Full Baths 1
Total Finished Square Feet 1,206
Total Finished Above Grade 1,008
Main 1,008
Basement Total 1,008
Basement Finished 198
Basement Unfinished 810
Acres 0.45
Year Built 1955
Type Single Family
Sub-Type Single Family Residence
Style Ranch
Status Active - Under Contract
Taxes $3,082
Tax Year 2024

Community Information

Address 3454 N Christine Drive
Subdivision Brettwood Heights
City Decatur
County Macon
State IL
Zip Code 62526

Amenities

Parking Attached, Garage
# of Garage Spaces 2
Is Waterfront No
Has Pool No

Interior

Appliances Cooktop, Dryer, Gas Water Heater, Oven, Refrigerator, Washer
Heating Forced Air
Cooling Central Air
Has Basement Yes
Basement Unfinished, Full, Sump Pump
Fireplace Yes
# of Fireplaces 2
Fireplaces Wood Burning, Family/Living/Great Room
# of Stories 1
Stories One

Exterior

Exterior Features Shed, Fence
Windows Replacement Windows
Roof Asphalt
Construction Vinyl Siding
Foundation Basement

School Information

District Decatur Dist 61

Additional Information

Date Listed August 20th, 2025
Days on Market 69
Zoning RES

Listing Details

AgentJoseph Doolin
OfficeBrinkoetter REALTORS®

Listing Map

Request a Showing

Provide a valid email address.
When would you like to view this property?