Loading floorplan...
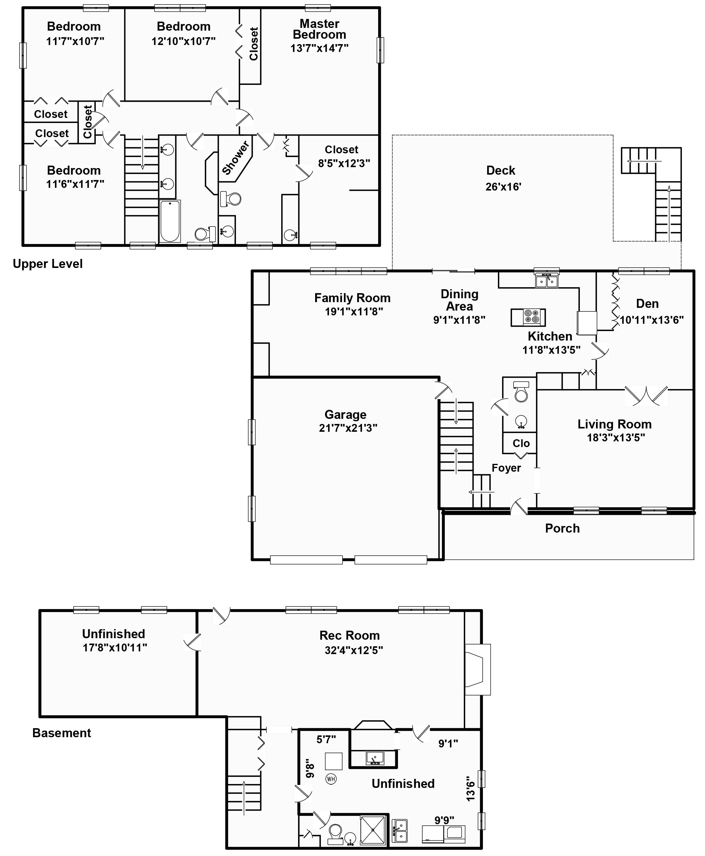
411 Woodhill Drive, Decatur, IL Floorplan
  • 1024w

411 Woodhill Drive, Decatur, IL

$239,900

Active

4 Beds

2½ Baths

2,941 SqFt

0.26 Acres

2 Car Garage

About 411 Woodhill Drive

Welcome to this inviting 4 bedroom, two-story home with a large wooded backyard in the sought-after South Shores area. The moment you step onto the cozy front porch and into the foyer, you will feel the love that fills this home. The formal living room boasts refinished hardwood floors leading into a beautiful formal dining room or home office with a built-in hutch and french doors. The kitchen has a center island with tile floors, and flows into an eating area and family room for open-concept living. Hardwood flooring has been exposed and refinished on the stairs and throughout the upper level. There are 4 bedrooms upstairs, including the primary bedroom with spacious en-suite and walk-in closet. The walkout basement has plenty of light with several windows and a door to the outdoor patio, and also has newer vinyl plank flooring and a cozy fireplace. A fifth bedroom could also be easily created if needed. Enjoy the backyard from the deck or patio with plenty of trees that give privacy. Dont' miss! (sqft approximate until professionally measured)

Facts & Features

MLS® # 6255528
Price $239,900
Cost Per Square Foot $82
Bedrooms 4
Bathrooms 3.00
Full Baths 2
Half Baths 1
Total Finished Square Feet 2,941
Total Finished Above Grade 2,291
Main 1,115
Upper 1 1,176
Basement Total 1,116
Basement Finished 650
Basement Unfinished 466
Acres 0.26
Year Built 1964
Type Single Family
Sub-Type Single Family Residence
Style Traditional
Status Active
Taxes $5,238
Tax Year 2024

Community Information

Address 411 Woodhill Drive
Subdivision South Shores 20th Add
City Decatur
County Macon
State IL
Zip Code 62521

Amenities

Parking Attached, Garage
# of Garage Spaces 2
Is Waterfront No
Has Pool No

Interior

Appliances Gas Water Heater, Oven, Refrigerator, Dishwasher, Microwave
Heating Forced Air
Cooling Central Air
Has Basement Yes
Basement Unfinished, Finished, Full, Walk-Out Access
Fireplace No
# of Stories 2
Stories Two

Exterior

Roof Asphalt
Construction Vinyl Siding
Foundation Basement

School Information

District Decatur Dist 61

Additional Information

Date Listed October 10th, 2025
Days on Market 17
Zoning RES

Listing Details

AgentJoseph Doolin
OfficeBrinkoetter REALTORS®

Listing Map

Request a Showing

Provide a valid email address.
When would you like to view this property?